[ NÁUKA O BUDOVÁCH 1 ]
_______________________
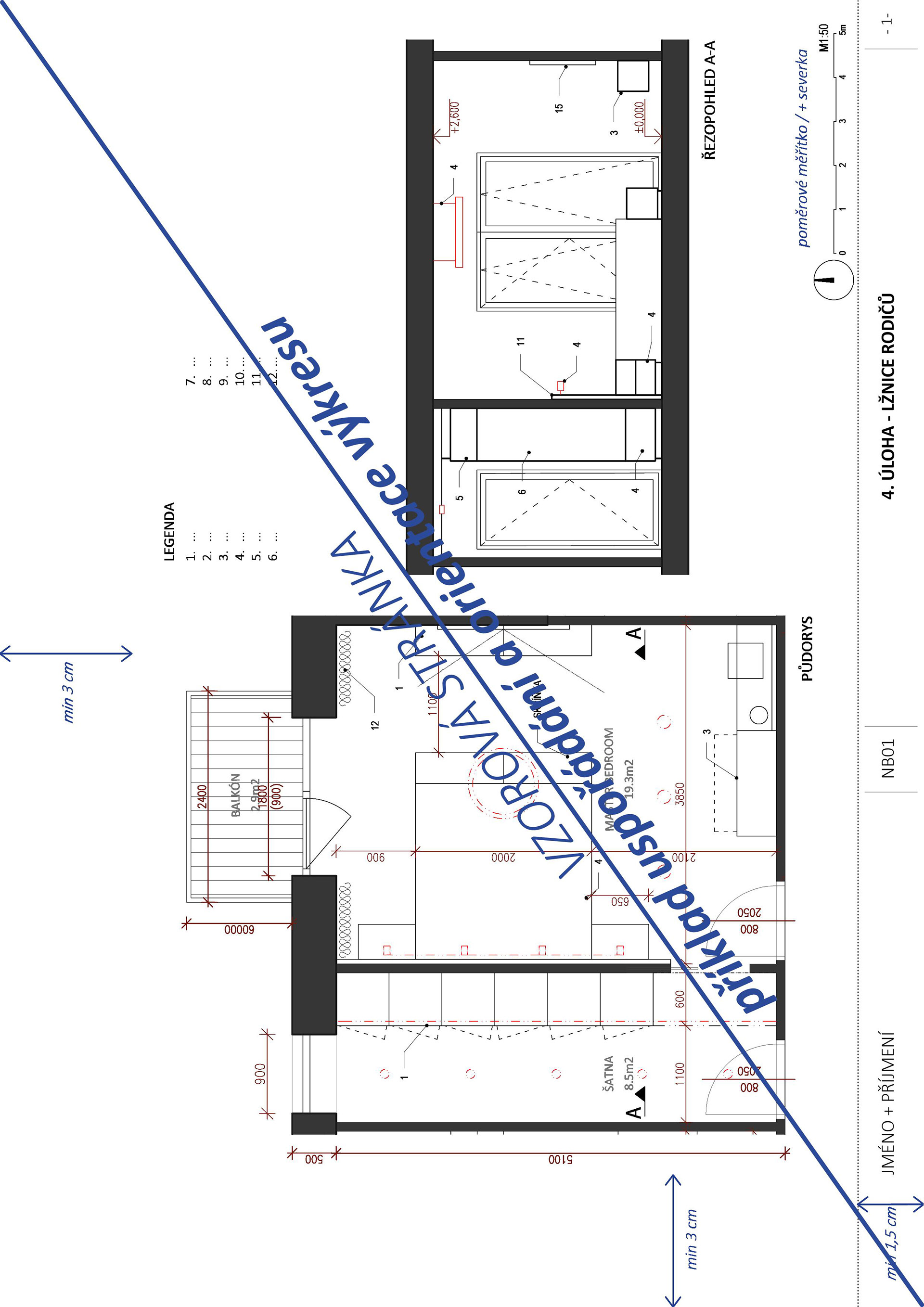
BYT: LOŽNICE RODIČŮ
Úloha je zaměřena na ložnice pro rodiče s úložnými prostory (jako obytná místnost s dvojlůžkem a úložnými prostory nebo s oddělenou šatnou jako samostatnou místností) a vazbou na koupelnu (bez řešení koupelny), osvojení základních rozměrů a funkčních parametrů při pobytu a pohybu v ložnici. Seznámení s podrobnostmi zařizovacích předmětů a jejich značení v půdorysech. Příprava - rešerše ložnice s dvojlůžkem (reference, obrázky, skici, vlastní fotky, dostupné půdorysy a pohledy rešerší), příslušné zařizovací předměty (ideálně překreslené v měřítku).
ZADÁNÍ
NAVRHNĚTE LOŽNICI PRO RODIČE
Příprava
Šablona se zařizovacími předměty překreslené v měřítku (v minimálním rozsahu: 1. dvoulůžko, 2. šatní úložní prostoru v klasickém modulu, 3. noční stolky, 4. další skříně například komody od konkrétního výrobce, 5. vestavná šatní skříň nebo skříň od konkrétního výrobce inspirace například IKEA apod., 6. prvky osvětlení do pokoje / lampy apod.)
Výkresy
1) Půdorys ložnice s šatními úložnými prostory
2) Pohled / řezopohled (orientace k fasádě)
Formát: 1 x A4
Měřítko: 1:50
Podklad (domácí příprava): 1 x A4 (A3 dle potřeby)
Rozsah obsahu
a) Podklad (domácí příprava) - list formátu A4 (A3) s vybranými zařizovacími předměty, další použité prvky pro kreslení do půdorysu (dle potřeby okótovat pro usnadnění práce)
b) Výkresy půdorysu 1) a pohledu 2)
Ložnice rodičů: s šatními úložnými prostory či prostorově oddělenou šatnou. Vyřešte optimální umístění oken a dveří v místnosti včetně jejich směru otevírání, navrhněte osvětlení. Půdorys s vybavením a nábytkem a řez s pohledem na fasádní stěnu (velikost a umístění oken, výška parapetů), doplňte kótami, popište obsah úložných prostor.
c) V půdorysu navrhněte návaznost místnosti na šatnu (nebo jako prostor šatny, který je součástí místnosti ložnice, lze navrhnout libovolně)
d) Kóty - základní vnější rozměry místnosti, případně velikosti okenních otvorů, základní vnitřní rozměry místnosti, dále ve výkresech budou umístěny zařizovací předměty a základní odstupy (kóty pro průchody, zařizovacích předmětů apod.), výškové rozměry (tzv. kachny podlahy, stropu, světlá výška místnosti)
e) Parametry místnosti - popis místnosti, plocha místnosti (formou tabulky / legendy místností nebo přímo v půdorysu)
f) Popisy - nebo legendou u interiérových předmětů jako stůl, gauč, postel atd., u zařizovacích předmětů
g) Obecné náležitosti - popis místností, plochu místností a celkovou plochu bytu (formou tabulky nebo v půdorysu), doplnění severky do půdorysu (v případě obytných místností), název výkresu, měřítko (vše velkým tiskacím písmem)
h) Čáry a šrafy - dbejte na význam druhů čar / šraf (šrafy lze použít pro zvýraznění konstrukcí jako příček a nosných stěn, čerchované čáry - konstrukce nad úrovní řezu, tlustě - obvodové stěny, tence - příčky, tence - zařizovací předměty apod., přerušované čáry - skryté / neviditelné prvky například pro zobrazení polic uvnitř skříněk)
PREZENTACE ZE CVIČENÍ (ke stažení zde)
ZPRACOVÁNÍ (přehled zde)
PODKLADY (přehled zde)
MATERIÁLY K ÚLOZE

VÝKRES

INSPIRACE

podklad šablony
_______________________
_______________________
_______________________