[ NÁUKA O BUDOVÁCH 1 ]
_______________________
BYT: HYGIENICKÉ PROSTORY V BYTĚ
Úloha je zaměřena na hygienické prostory v bytě (koupelnu a samostatné wc s umyvadlem), osvojení základních rozměrů a funkčních parametrů se zaměřením na dispoziční řešení koupelen vlastním návrhem. Seznámení s podrobnostmi zařizovacích předmětů a jejich značení v půdorysech. Příprava - rešerše hygienických prostorů v bytě (reference, obrázky, skici, fotky vlastní koupelny, dostupné půdorysy a pohledy rešerší), příslušné zařizovací předměty (ideálně překreslené v měřítku).
ZADÁNÍ
ZPRACUJTE NÁVRH KOUPELNY A SAMOSTATNÉ WC S UMYVADLEM
Příprava
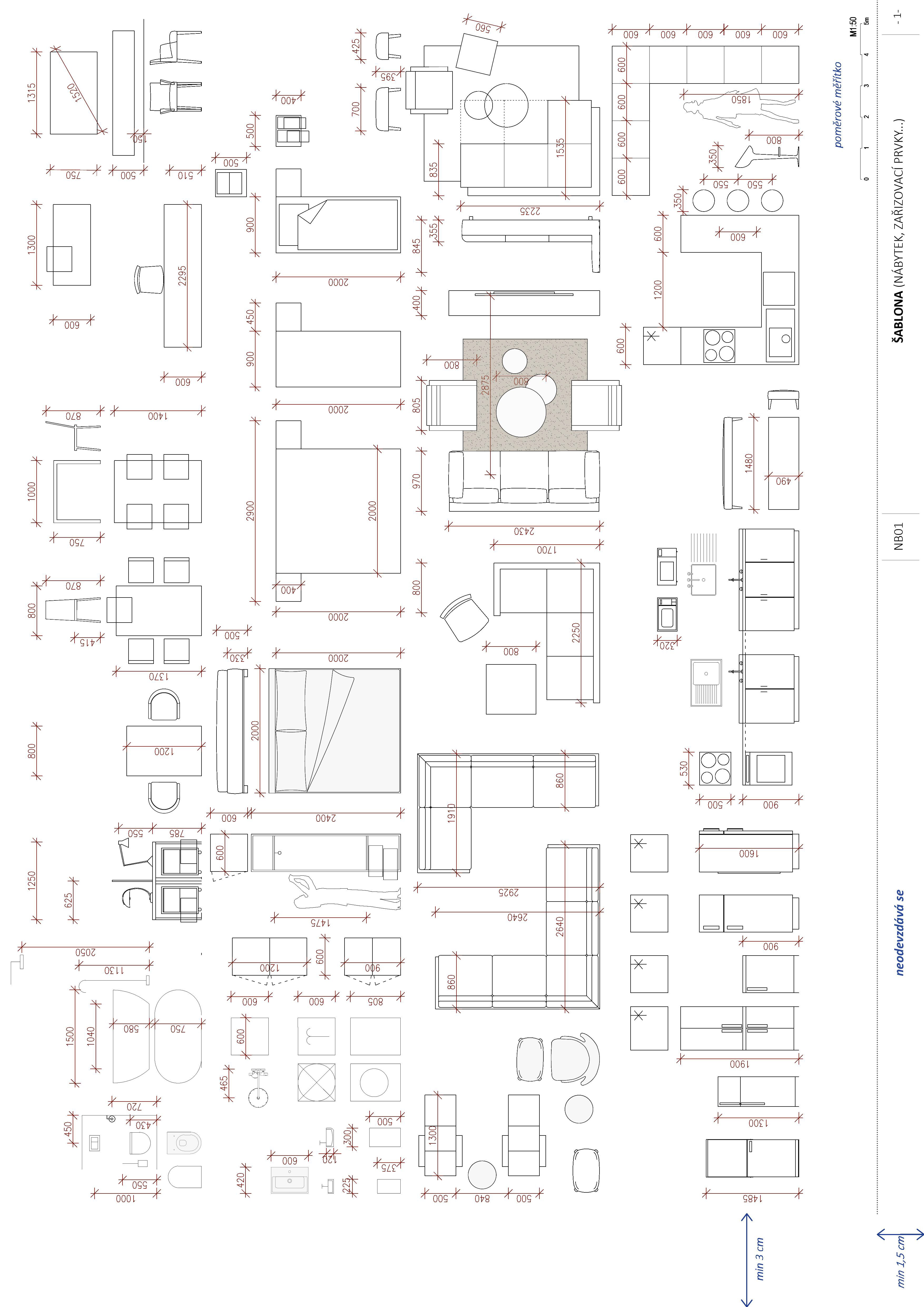
Šablona se zařizovacími předměty překreslené v měřítku (v minimálním rozsahu: 1. WC mísa s geberitem, s integrovaným bidetem nebo lze použít ruční spršku, 2. Umyvadlo a dvojumyvadlo, 3. Sprcha a vana, 4. Topný žebřík, 5. Pračka a sušička, 6. Háčky a poličky a prvky osvětlení)
Výkresy1) Půdorys koupelny
2) Pohled / řezopohled koupelnou
3) Půdorys toalety s umyvadlem
Formát: 1 x A4 (A3)
Měřítko: 1:50
Podklad (domácí příprava): 1 x A4 (A3 dle potřeby)
Rozsah obsahu
a) Podklad (domácí příprava) - list formátu A4 (A3) s vybranými zařizovacími předměty, další použité prvky pro kreslení do půdorysu (dle potřeby okótovat pro usnadnění práce)
b) Výkresy půdorysu 1) a pohledu 2) a wc 3)
Koupelna: Dvojumyvadlo, ve vybavení bude sprcha i vana, WC s integrovaným bidetem nebo s ruční sprškou, topný žebřík, pračka se sušičkou, koš na prádlo, ostatní běžné vybavení (WC set, držák na toaletní papír, háčky, držáky na ručník, zrcadlo, polička
či skříňka na hygienické potřeby, osvětlení včetně jeho ovládání, umístění zásuvek…)
či skříňka na hygienické potřeby, osvětlení včetně jeho ovládání, umístění zásuvek…)
Toaleta: WC s integrovaným bidetem nebo s ruční sprškou, WC set, držák na toaletní papír, háček nebo držák na ručník, umyvadlo se zrcadlem a osvětlení včetně jeho ovládání
c) Kóty - základní vnější rozměry místnosti, případně velikosti okenních otvorů, základní vnitřní rozměry místnosti, dále ve výkresech budou umístěny zařizovací předměty a základní odstupy (kóty pro průchody, zařizovacích předmětů apod.), výškové rozměry (tzv. kachny podlahy, stropu, světlá výška místnosti)
d) Parametry místnosti - popis místnosti, plocha místnosti (formou tabulky / legendy místností nebo přímo v půdorysu)
e) Popisy - výkresy budou obsahovat popis (slovně odkazy nebo vyznačeným popisem s odkazem do legendy) jednotlivých zařizovacích předmětů a popisy příslušenství (svítidlo, stojan na toaletní papír apod.)
g) Obecné náležitosti - popis místností, plocha místností (formou tabulky nebo v půdorysu) a celková plocha bytu (u 7. úlohy), doplnění severky do půdorysu (v případě obytných místností), název výkresu, měřítko (vše velkým tiskacím písmem)
g) Čáry a šrafy - dbejte na význam druhů čar / šraf (šrafy lze použít pro zvýraznění konstrukcí jako příček a nosných stěn, čerchované čáry - konstrukce nad úrovní řezu, tlustě - obvodové stěny, tence - příčky, tence - zařizovací předměty apod., přerušované čáry - skryté / neviditelné prvky například pro zobrazení polic uvnitř skříněk)
h) Instalace - instalační jádro pro vedení instalací (vnitřní rozměr cca 0,3 x 0,7 m), instalační předstěna (pro geberit u toalety, tl. 200 mm, u sprchového koutu a v místě umyvadel alespoň tl. 100 mm - lze lokálně nebo na celou délku či šířku místnosti, lze přičlenit k tloušťce stěny, tedy u příček tl. 100 mm bude tato stěna 200 mm apod.)
PREZENTACE ZE CVIČENÍ (ke stažení zde)
ZPRACOVÁNÍ (přehled zde)
PODKLADY (přehled zde)
MATERIÁLY K ÚLOZE

VÝKRES

INSPIRACE

ŠABLONA (překresleno)
_______________________
_______________________
_______________________