[ NÁUKA O BUDOVÁCH 1 ]
_______________________
RODINNÉ DOMY: 19., 20. A 21. STOLETÍ
Úloha je zaměřena na zpracování rešerší rodinných domů a vil z různých časových období. Dispozice rodinných domů, dobové dispoziční řešení bytu a rozborem rodinného domu.
ZADÁNÍ
ZPRACUJTE REŠERŠE TŘECH RODINNÝCH DOMŮ
Výkresy
1) Vila dům z 19. století
2) Vila dům z 20. století
3) Rodinný dům z 21. století
Rozsah obsahu
a) Podklad - vyhledání tří rešerší dle zadání (vybírejte příklady na území ČR), případná úprava a zpracování podkladu pro tisk dle zadaného měřítka a pro účely další práce s podkladem
b) Vyznačení na průsvitném papíře - zónování bytu (barevně), označení vstupu do bytu, vynesení konstrukcí (rozlište druhy konstrukce tl. čáry nebo použijte šrafy - vystačí jeden druh) a popis konstrukčního systému (příčný, podélný, obousměrný nosný stěnový systém, skelet...)
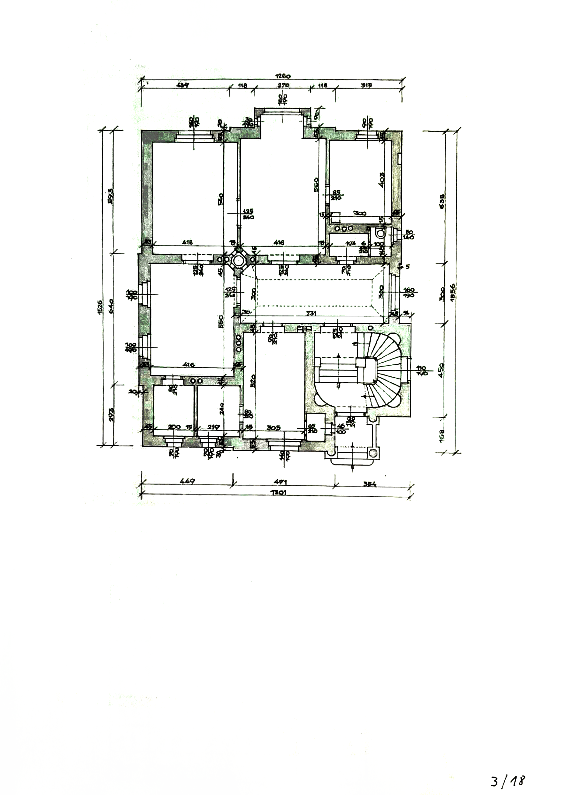
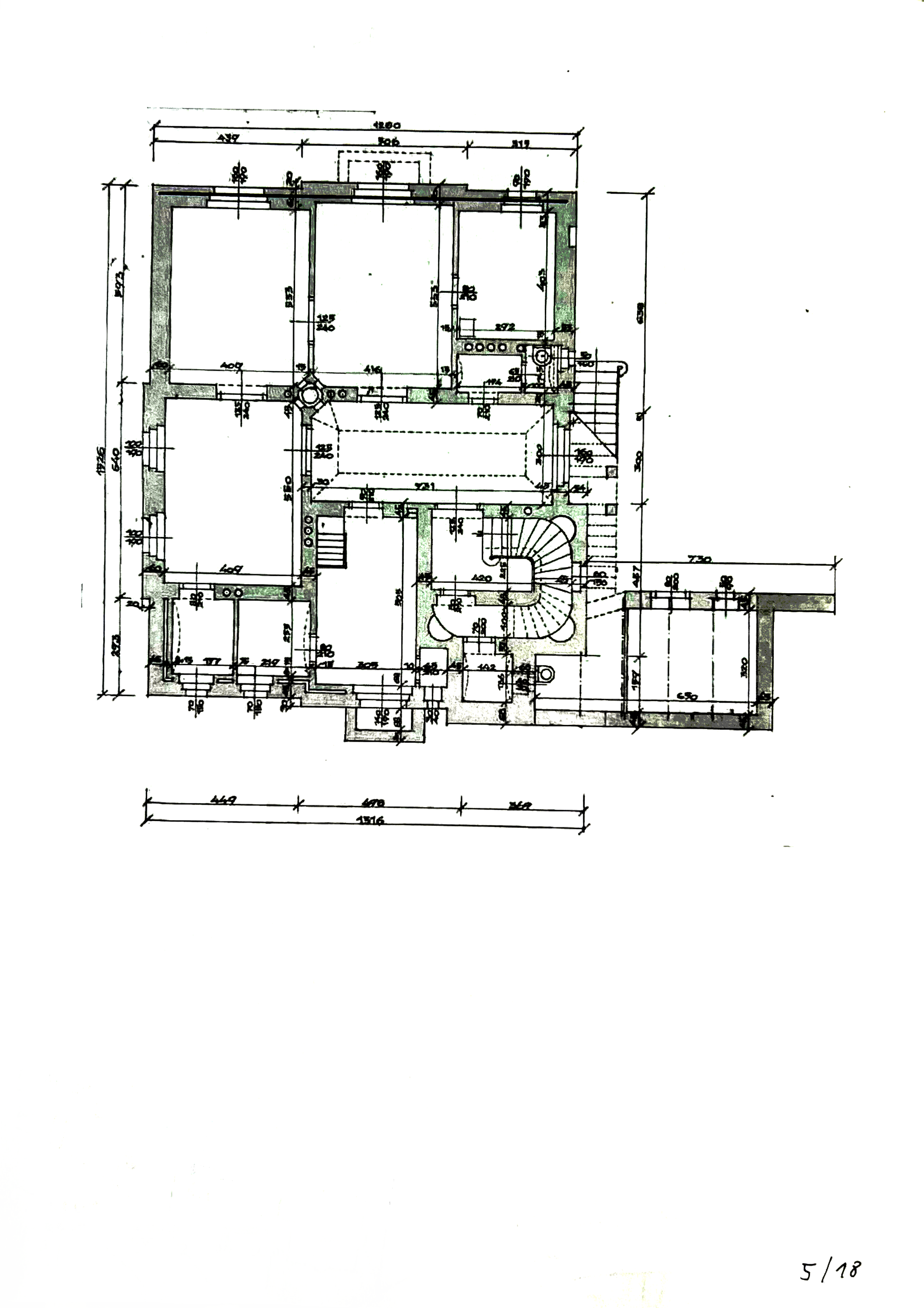
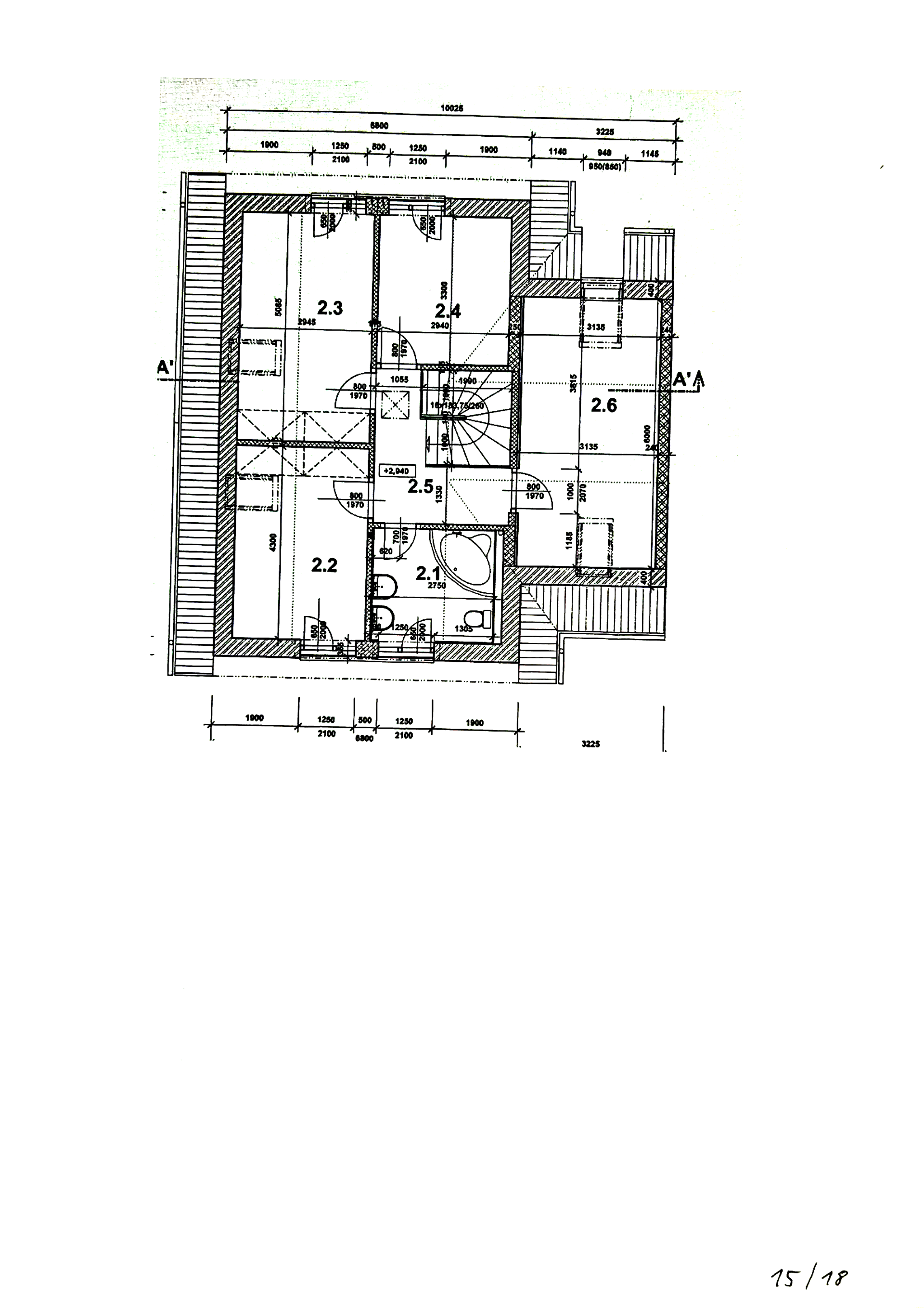
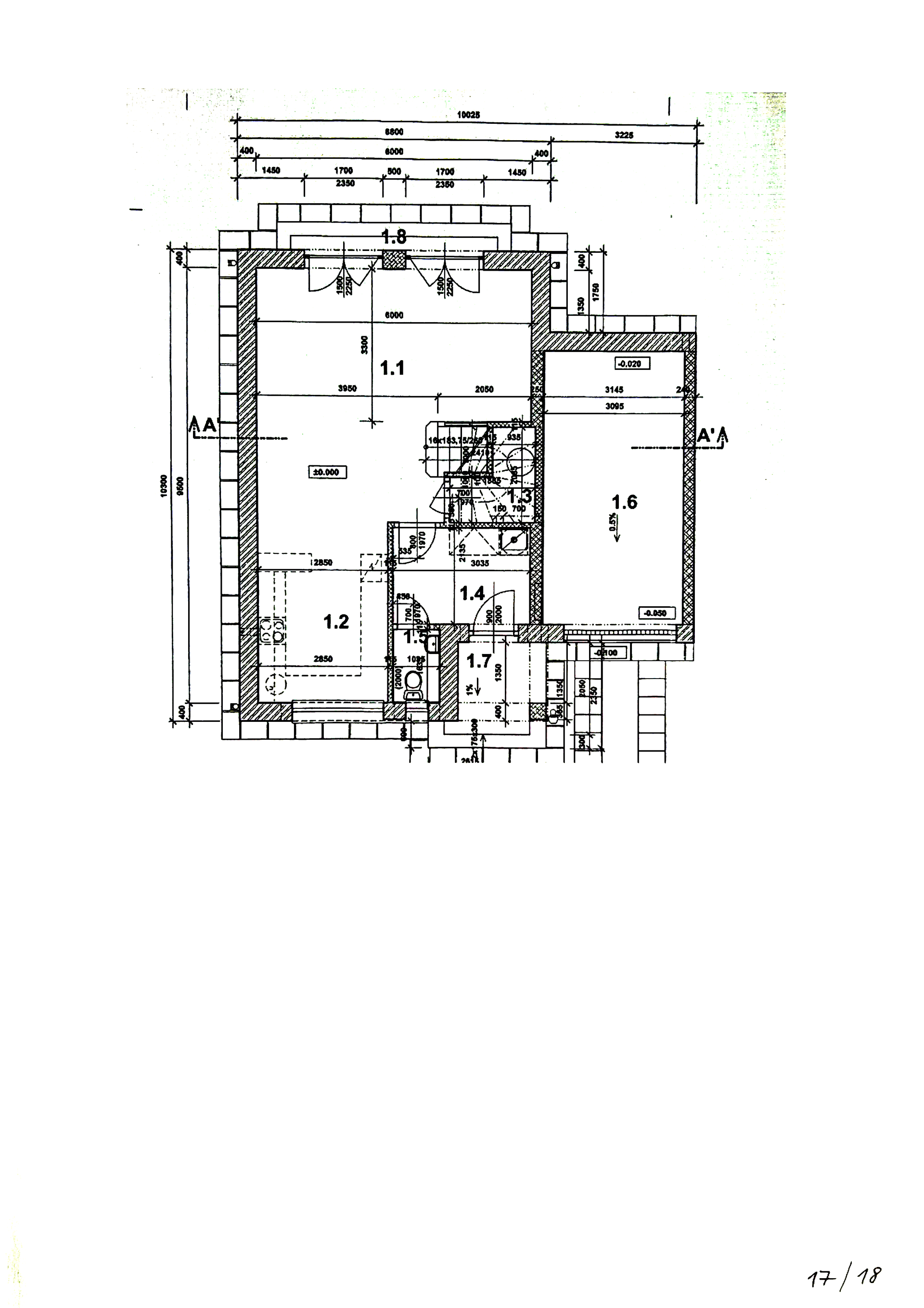
c) Základní vnější rozměry (kóty) domu a rozměry (kóty) vnitřních místností
d) Popis místností, plochu místností a celkovou plochu bytu (formou tabulky nebo v půdorysu), doplnění severky do půdorysu
e) Popište rozdíly v dispozičním řešení, návaznost domu na pozemek, velikostní skladbě bytu a orientaci ke světovým stranám
f) Krátký popis - architekt (pokud je znám), o jaký typ rodinného domu se jedná, kde se nachází, datum realizace, vloženou fotografii, pohled a situace domu, vlastními slovy a rukou (technickým písmem) napsaná stručná a výstižná charakteristika, tabulka s výčtem místností nebo popisy místností vepsané do půdorysu, výhody nevýhody a srovnání mezi jednotlivými rešeršemi
Řazení výkresů
1. Fotografie + popis
2. Situace
3. Půdorys 1PP
4. Půdorys 1NP
5. Půdorys 2NP (další zpracovaná podlaží dobrovolně)
6. Pohled severní (nebo jižní, východní... alespoň jeden)
ZPRACOVÁNÍ
- Formát A4 (A3)
- Měřítko 1:200
- V rohu výkresu umístěna severka
- Popisky psány technickým písmem (nebo digitálně)
- Výkresy kresleny v ruce dle pravítka (nebo digitálně)
- Odlišit příčky/prosklené/obvodové zdi (tl. čáry/šrafou)
Časté chyby
- Chybí základní vnější kóty objektu
- Chybí základní vnitřní kóty
- Není splněn zadaný počet zpracovaných rešerší
- Chybí popis místností s výměrou v m2
- Chybí značení vstupu do objektu
- Chybí celková plocha bytu
- Chybí severka
- Chybí měřítko
- Chybí napsané vlastní porovnání
- Chybí zónování
- Chybí konstrukční schéma
- Výběr příkladů pouze stejného období
Úprava
- Levý horní roh - číslo úlohy + název
- Pravý horní roh - jméno + příjmení studenta
- Název výkresu + měřítko výkresu + poměrové měřítko
- Dole - číslo stránky úlohy
- Rezerva pro pozdější vazbu (při levém okraji)
PODKLADY
- ČSN 73 4301 Obytné budovy
- Stavby pro bydlení 2001
- Vyhl. 268-2009 Sb.
- OTP, Vyhl. 23/2008Sb
- ČSN 73 4305 Zaříditelnost bytů
- Publikace (knihovna Katedry architektury, NTK)
- Weby (architektonické weby např. archiweb.cz)
- Přednášky NB01
- Neufert
UKÁZKY VÝSTUPŮ















_______________________
_______________________
_______________________