[ NÁUKA O BUDOVÁCH 1 ]
_______________________
BYDLENÍ: SOUDOBÉ BYTOVÉ DOMY
Úloha je zaměřena na zpracování rešerší různých typů soudobých bytových domů. Návaznost stavby na okolí a blízké vztahy, parkování, příslušenství, skladbu a rozbor bytových domů.
ZADÁNÍ
ZPRACUJTE REŠERŠE TŘECH BYTOVÝCH DOMŮ
Výkresy
1) BD č.1 (obrázek, pohled, situace, 1NP, běžné NP)
2) BD č.2 (obrázek, pohled, situace, 1NP, běžné NP)
3) BD č.3 (obrázek, pohled, situace, 1NP, běžné NP)
Různé typy - chodbový, pavlačový, bodový, mezonetový...
4) Parkování
Parkování lze zpracovat v návaznosti na okolí 1NP bytového domu (výkres 1NP u jedné rešerše bude zahrnovat umístění plochy parkovacích stání) nebo jako součást podzemní podlaží (garáže ve výkresu 1 PP)
Rozsah obsahu:
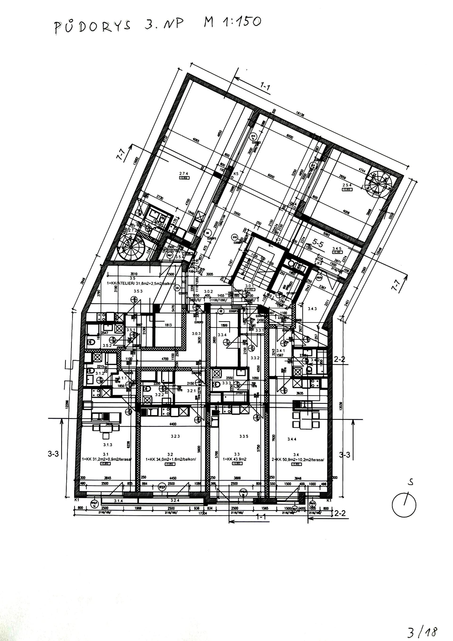
a) Na půdorysech vyznačte jednotlivé byty v návaznosti na komunikace v bytovém domě (chodby, haly, schodiště...) s označením vstupu do bytu (šipkou)
b) Doplňte - odlište barevně schéma druhů bytů (1+1, 2+1, 1+kk, 2+kk apod.), uveďte orientační plochu velikosti bytu (lze umístit do půdorysu nebo bokem do tabulky)
c) Na průsvitném papíře - vyznačte konstrukční schéma (příčný, podélný, obousměrný nosný systém, stěnový, skelet...) a vyneste základní konstrukce (odlište tl. čáry nebo vyplňte šrafou)
d) Rozbor parkování (u jedné rešerše) - doložte výkresem s návazností domu na parkování (výkres 1NP) nebo jako součást bytového domu (výkres 1PP s garáží), doplňte rozměry (kótami) parkovacího místa (rozměr dle druhu parkovacího stání např. příčné parkovací stání 2,5 x 5 m, rozměr parkovacího místa pro handicapované), doplňte šířku vozovky (dle typu komunikace např. obousměrná komunikace 6 m), uveďte celkový počet parkovacích stání v bytovém domě nebo na ploše vymezené pro parkování
e) Popis rešerše - architekt (pokud je znám), o jaký se jedná bytový dům, kde se nachází, datum realizace, návaznost na pozemek apod., vlastními slovy napsaná stručná a výstižná charakteristika objektu (např. pozadí období vzniku apod.)
f) Vložená fotografie domu (může být google street view apod.), pohled a situace domu (s měřítkem !)
g) Tabulka s počtem bytů dle jejich dispozic a celkovým počtem v BD (např. byt 2+1 je na podlaží 4x; 3+1 je na podlaží 2x… celkem je v BD 62 bytů)
Řazení výkresů
1. Fotografie + popis
2. Situace
3. Půdorys 1NP
4. Půdorys běžného NP
5. Pohled severní (nebo jižní, východní... alespoň jeden)
ZPRACOVÁNÍ
- Formát A4 (A3)
- Měřítko 1:200
- V rohu výkresu umístěna severka
- Popisky psány technickým písmem (nebo digitálně)
- Výkresy kresleny v ruce dle pravítka (nebo digitálně)
- Odlišit příčky/prosklené/obvodové zdi (tl. čáry/šrafou)
Časté chyby
- Chybí základní vnější kóty objektu
- Chybí tabulka (výčet) druhů bytů, počet a m2
- Chybí značení vstupů do bytu
- Chybí severka
- Chybí měřítko
- Chybí napsané vlastní porovnání
- Chybí rozbor parkování (kóty stání, komunikace, počet)
- Chybí konstrukční schéma
- Výběr příkladů pouze stejného typu bytového domu
Úprava
- Levý horní roh - číslo úlohy + název
- Pravý horní roh - jméno + příjmení studenta
- Název výkresu + měřítko výkresu + poměrové měřítko
- Dole - číslo stránky úlohy
- Rezerva pro pozdější vazbu (při levém okraji)
PODKLADY
- ČSN 73 4301 Obytné budovy
- Stavby pro bydlení 2001
- Vyhl. 268-2009 Sb.
- OTP, Vyhl. 23/2008Sb
- ČSN 73 4305 Zaříditelnost bytů
- Publikace (knihovna Katedry architektury, NTK)
- Weby (architektonické weby např. archiweb.cz)
- Přednášky NB01
- Neufert
UKÁZKY VÝSTUPŮ


















_______________________
_______________________
_______________________